first image
'three-family home' by romano adolini architetto, nepi, italy
all images courtesy of romano adolini
?
?
?
This residential project by italian architect romano adolini is designed for three young friends who decided to build their homes together, and could
be considered an architectural exploration of the theme of friendship. The corner lot in a residential area had already been chosen by the clients where
the three buildings were constructed at 45 degree angles to each other pivoting around a fulcrum point planted with an olive tree - a symbol of
companionship - and connected by a portico that anticipates the identical volumes of the three dwellings: each home is a single volume with a single-
pitched copper roof. On the external facade the large double height window opens onto the pool, while the walls are faced with tufo treated all'orvietana.
?
?

side view of one home
?
?

front view with swimming pool and small dividing wall
?
?

side view
?
?

interior with mezzanine level
?
?

interior view from mezzanine
?
?

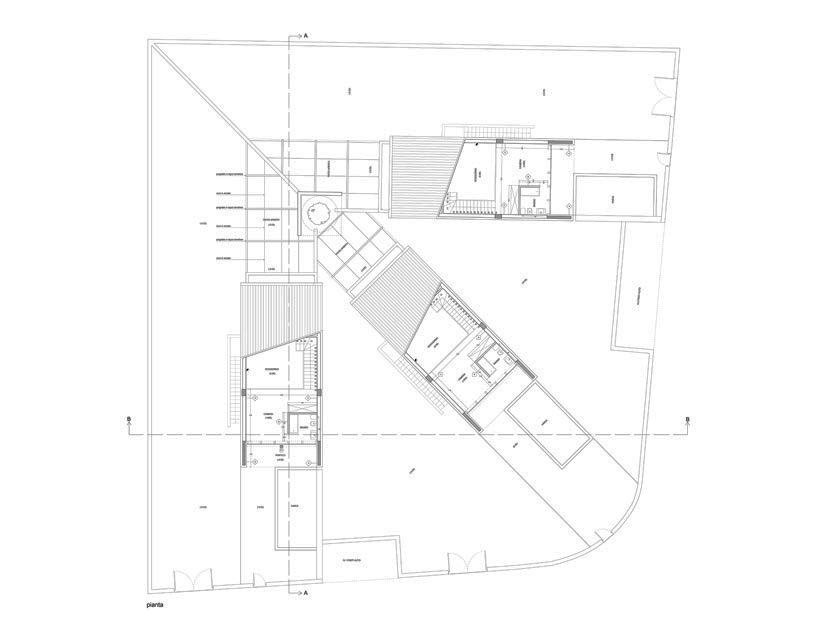
floor plan / level 0
?
?
designboom has received this project from our 'DIY submissions' feature, where we welcome our readers to submit their own work for publication.
see more project submissions from our readers here.
Source: http://www.designboom.com/architecture/three-family-home-nepi-vt-italy/
joe budden notre dame notre dame football Bcs Bowl Chuck Hagel ncaa football CES
কোন মন্তব্য নেই:
একটি মন্তব্য পোস্ট করুন